SIX SHARP
如何打造当下流行网红店,成为现在空间设计中不可绕开的一个设计切入点。
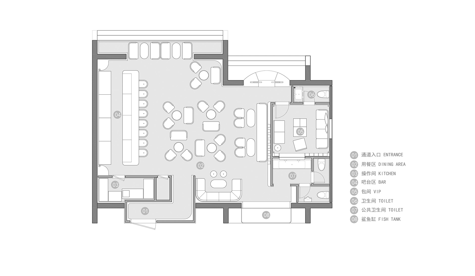
我们的设计灵感来自海洋,尽可能让空间硬装极致的简约,让与海洋相关的元素能有趣味的呈现在空间当中,既是空间主题的强调又是视觉上的吸引点,让消费者能在整个空间当中感受到来自海洋独特的艺术感染力。
只有与众不同,才能成为网红。











如何打造当下流行网红店,成为现在空间设计中不可绕开的一个设计切入点。
我们的设计灵感来自海洋,尽可能让空间硬装极致的简约,让与海洋相关的元素能有趣味的呈现在空间当中,既是空间主题的强调又是视觉上的吸引点,让消费者能在整个空间当中感受到来自海洋独特的艺术感染力。
只有与众不同,才能成为网红。










